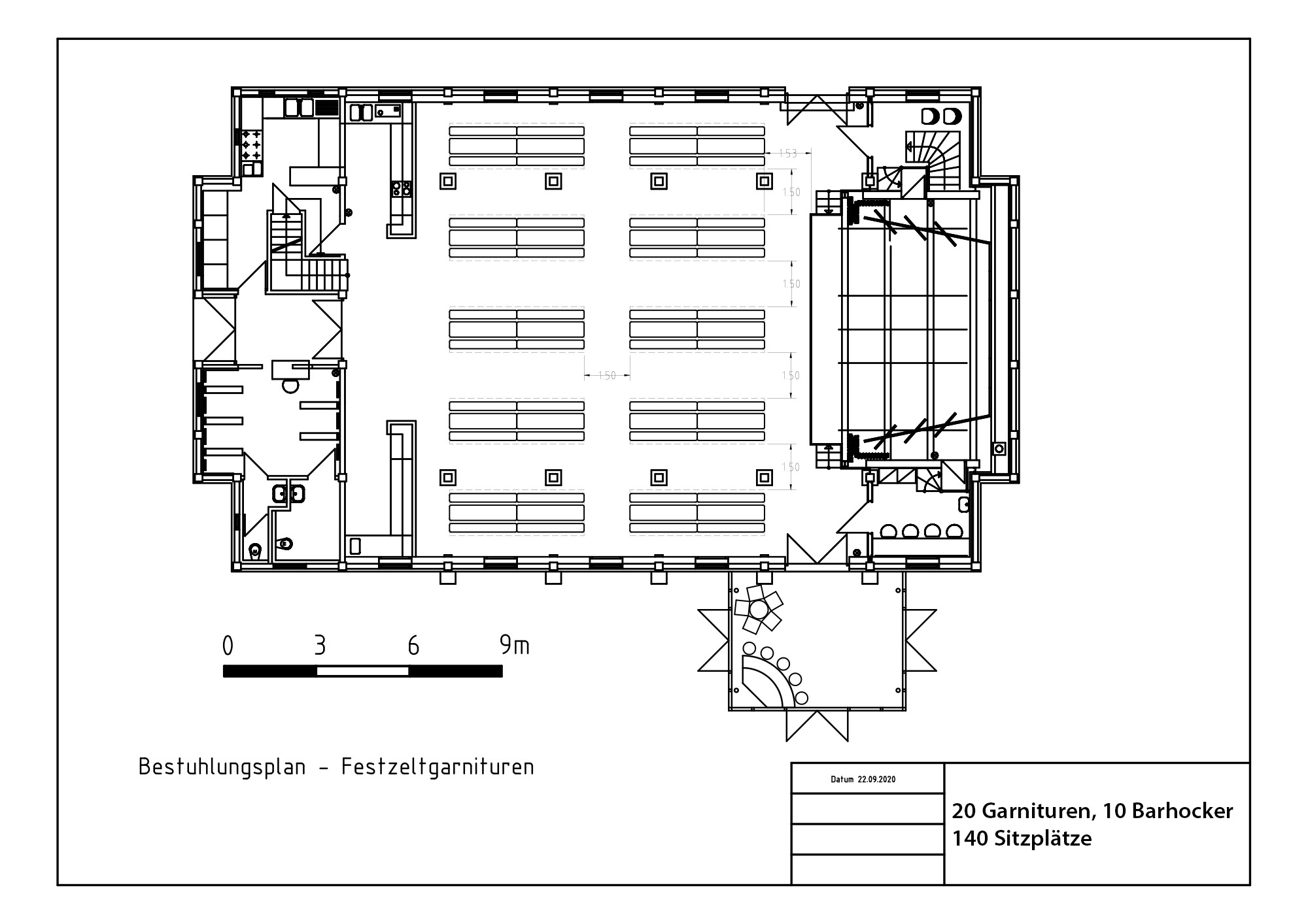
Blog Post Image: Semihalle_Festzeltgarnituren_Corona_bemasst_V3_3